Loft
Square (ft)
1
Bedrooms
1
Bathrooms
800
Square (ft)
2021
Year Built
2
Garage
Clear Filters
Office:
Mobile:
Email:
Website:
Description
Enchanting three bedroom, three bath home with spacious one bedroom, one bath cabana, in-laws quarters. Charming living area features fireplace and fabulous art deco details. Formal dining room. Remodeled kitchen with granite countertops, white cabinetry and stainless appliances. Lovely master bedroom has updated bath, beautiful view of the pool. Guest bedrooms have walk-in, cedar closets. Delightful backyard; majestic oaks surround the free form pool and expansive patio, wet bar and grill.
Amenities
- Heating
- Intercom
- Air Condition
- Window
- Fireplace
- Cable TV
- Elevator
- WiFi
- Equippen Kitchen
- Gym
- Laundry
- Media Room
Outdoor Features
- Back yard
- Basketball court
- Front yard
- Garage
- Swimming Pool
- Security
- Parking
- Garden
- Disabled Access
- Fence
- Pet Friendly
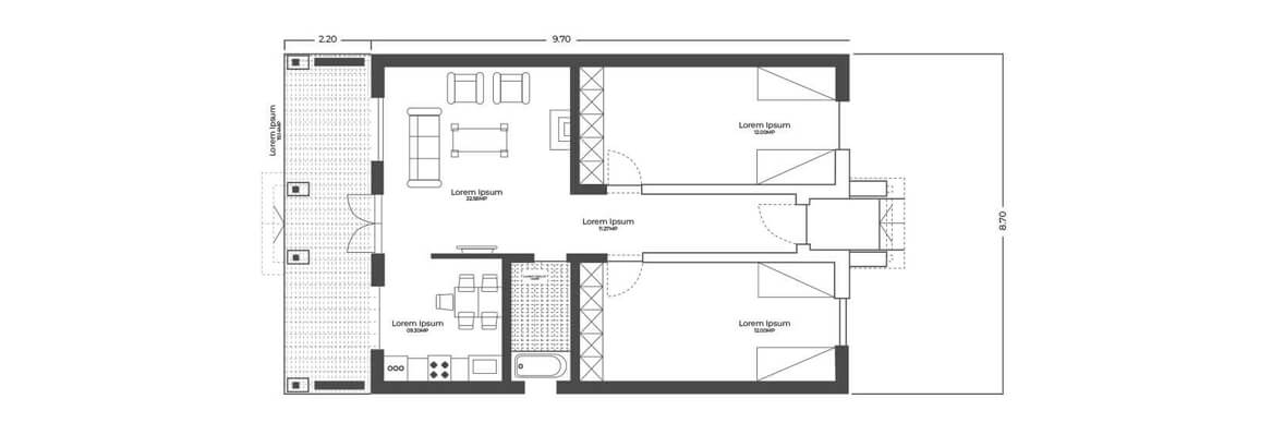
Floor Plan

What's Nearby?
School:
1.2km
Hospital, medical:
0.5km
University:
2.2km
Metro station:
0.8km
Grocery center:
0.5km
Gym, wellness:
0.8km
Market:
1.1km
River:
0.2km
Similar Properties
Clear Filters



